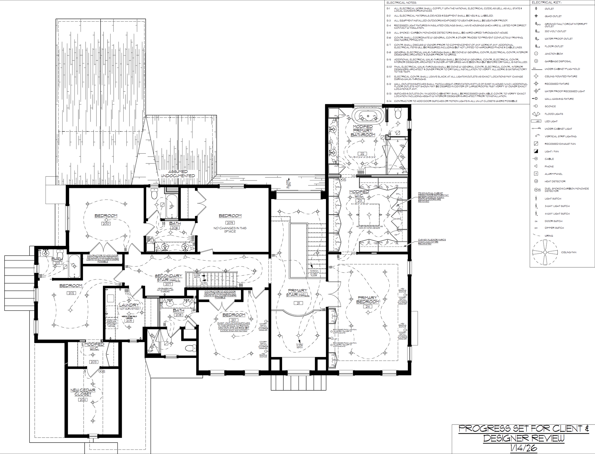
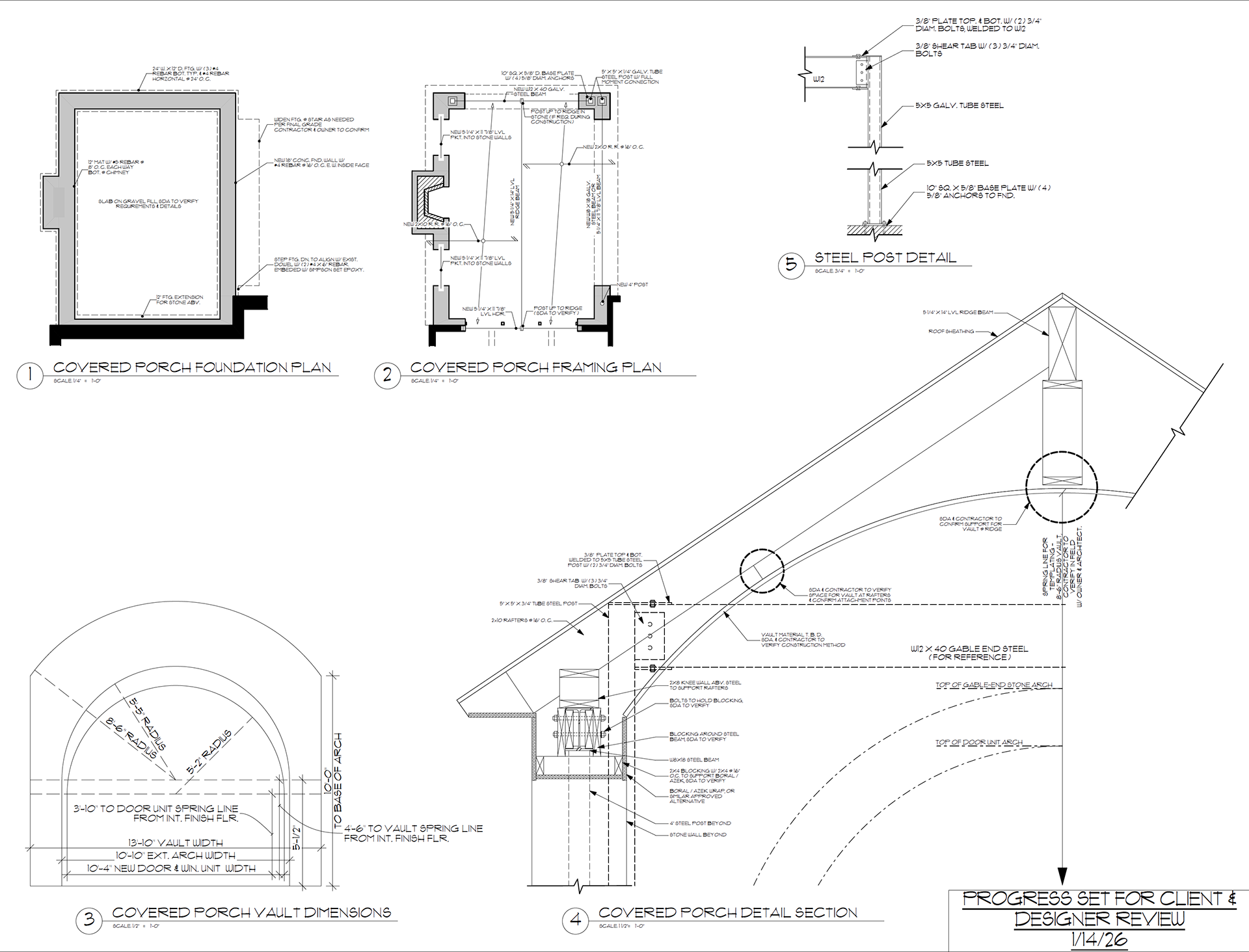
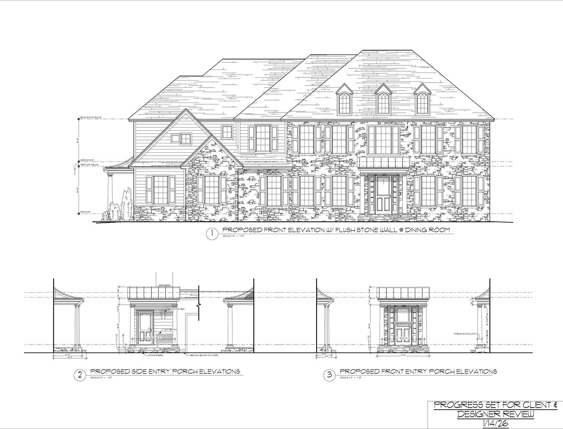
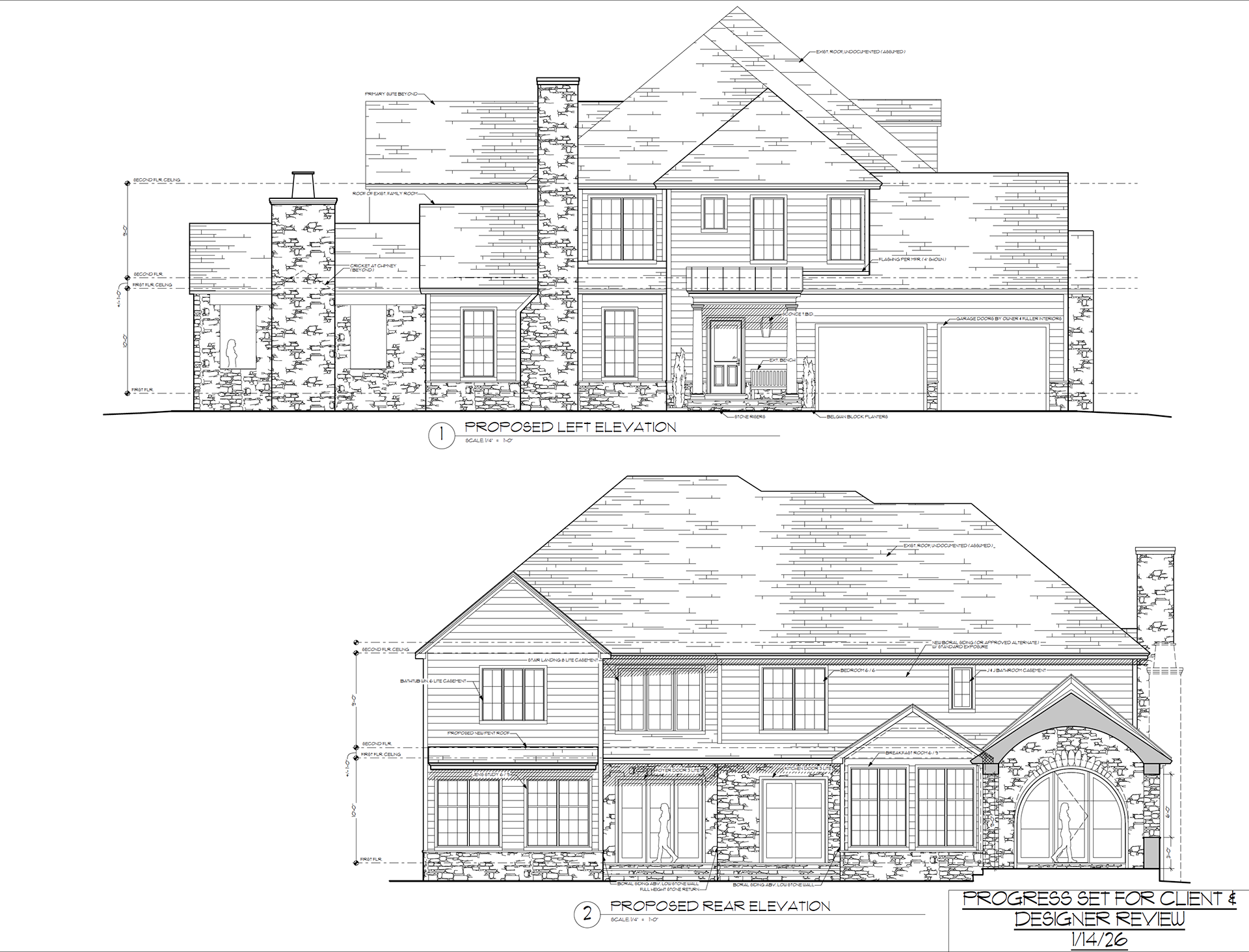
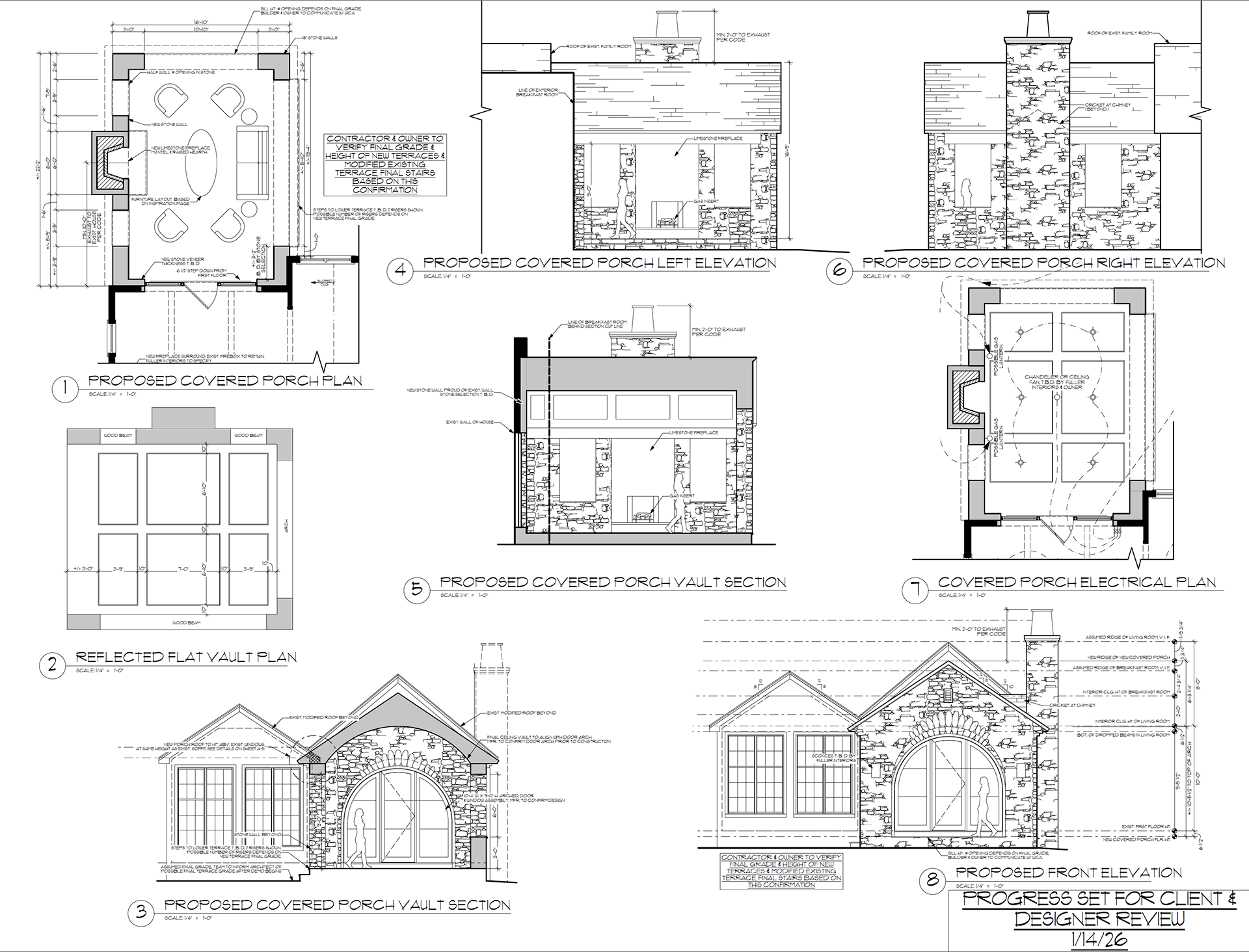
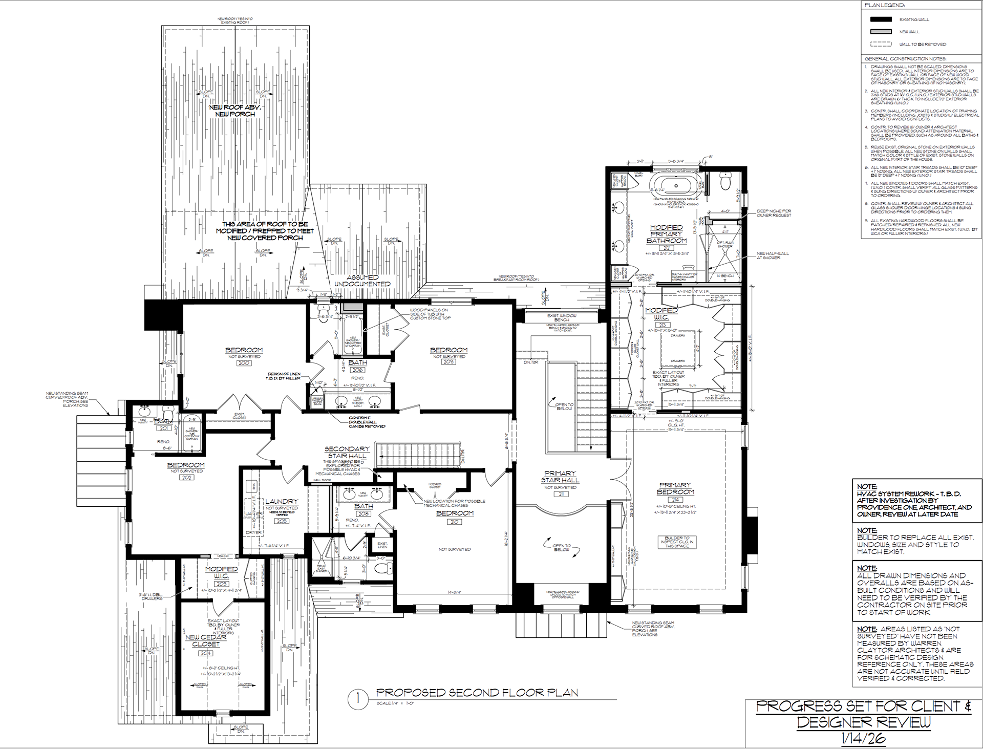
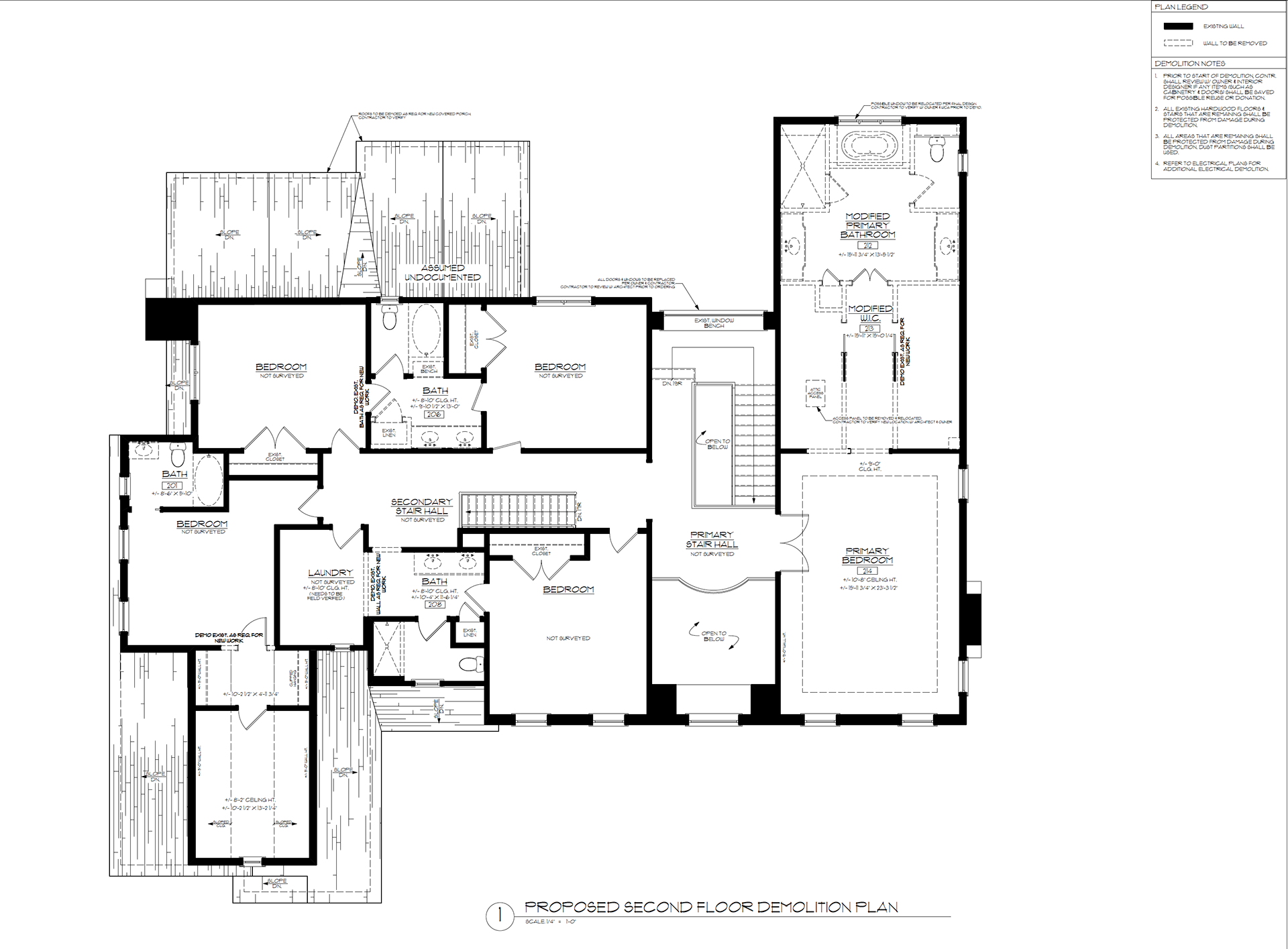
THIS PROJECT WAS A BUILDER-SPEC HOUSE IN NEED OF A FULL UPDATE TOP TO BOTTOM. WE WORKED WITH INTERIOR DESIGNERS, CABINETRY COMPANIES, AND EVEN A HIGH END MAINLINE KITCHEN SPECIALTY FIRM TO TURN THE HOUSE INTO WHOLE NEW EXPERIENCE. KEY ARCHITECTURAL CHANGES ARE IN NEW STONEWORK DETAILS, AN EVOLVED INTERIOR FLOW THAT MAKES USE OF AN EXISTING OVERSIZED GARAGE, AND NEW ENTRY & LIVING PATIOS AROUND THE HOUSE, INCLUDING A STONE ARCH COVERED PATIO AT THE REAR. WE HELPED DESIGN CUSTOM DOORS & PANELING TO TIE THE VISION TOGETHER.
BUILDER: PROVIDENCE ONE CUSTOM HOMES
INTERIOR DESIGNER: FULLER INTERIORS
KITCHEN DESIGNER: BLUEBELL KITCHENS
INTERIOR DESIGNER: FULLER INTERIORS
KITCHEN DESIGNER: BLUEBELL KITCHENS