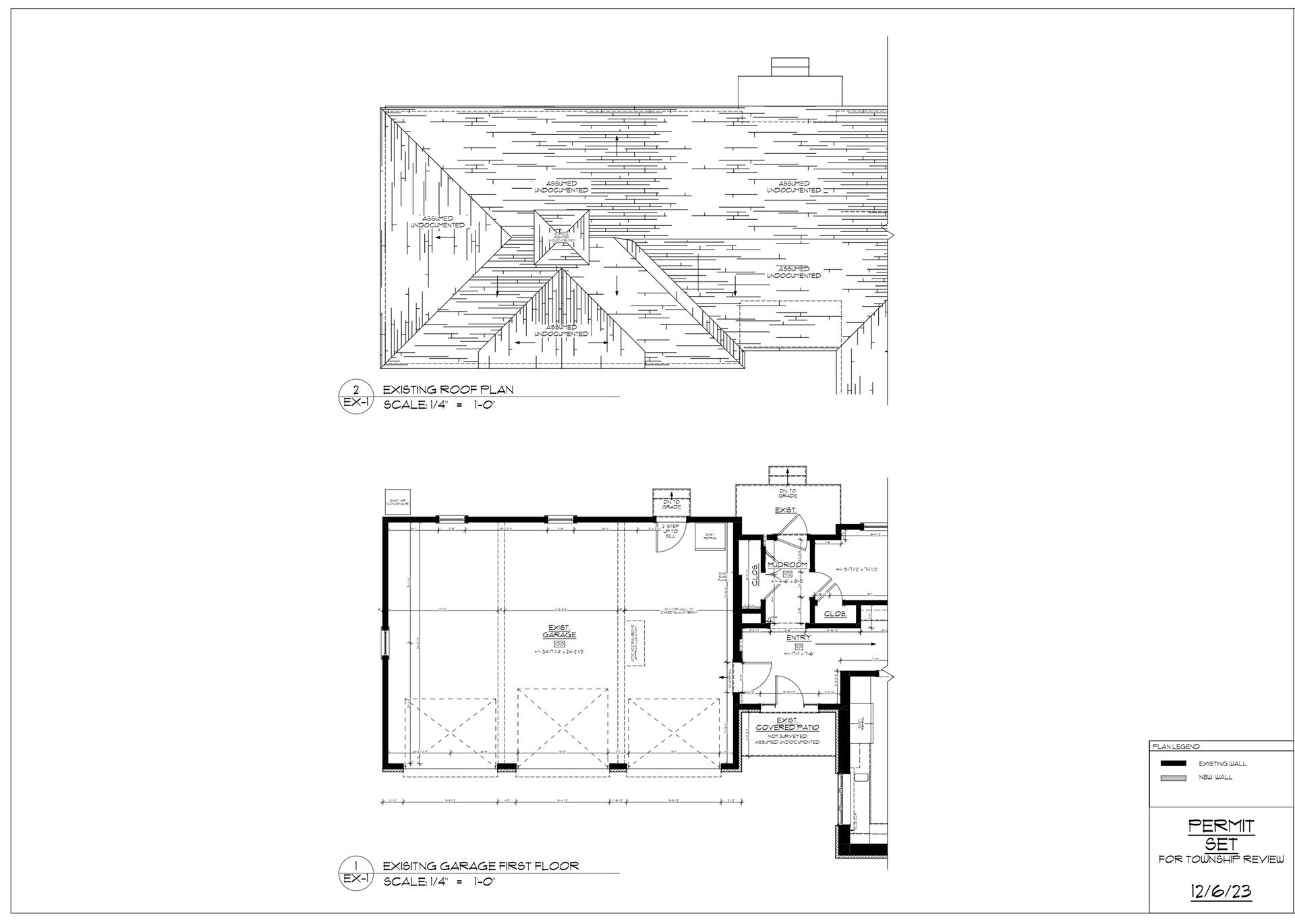
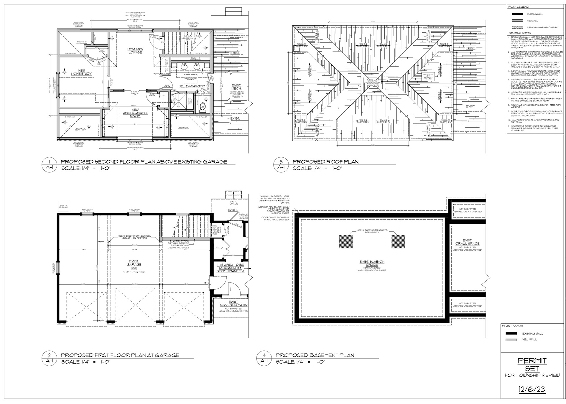
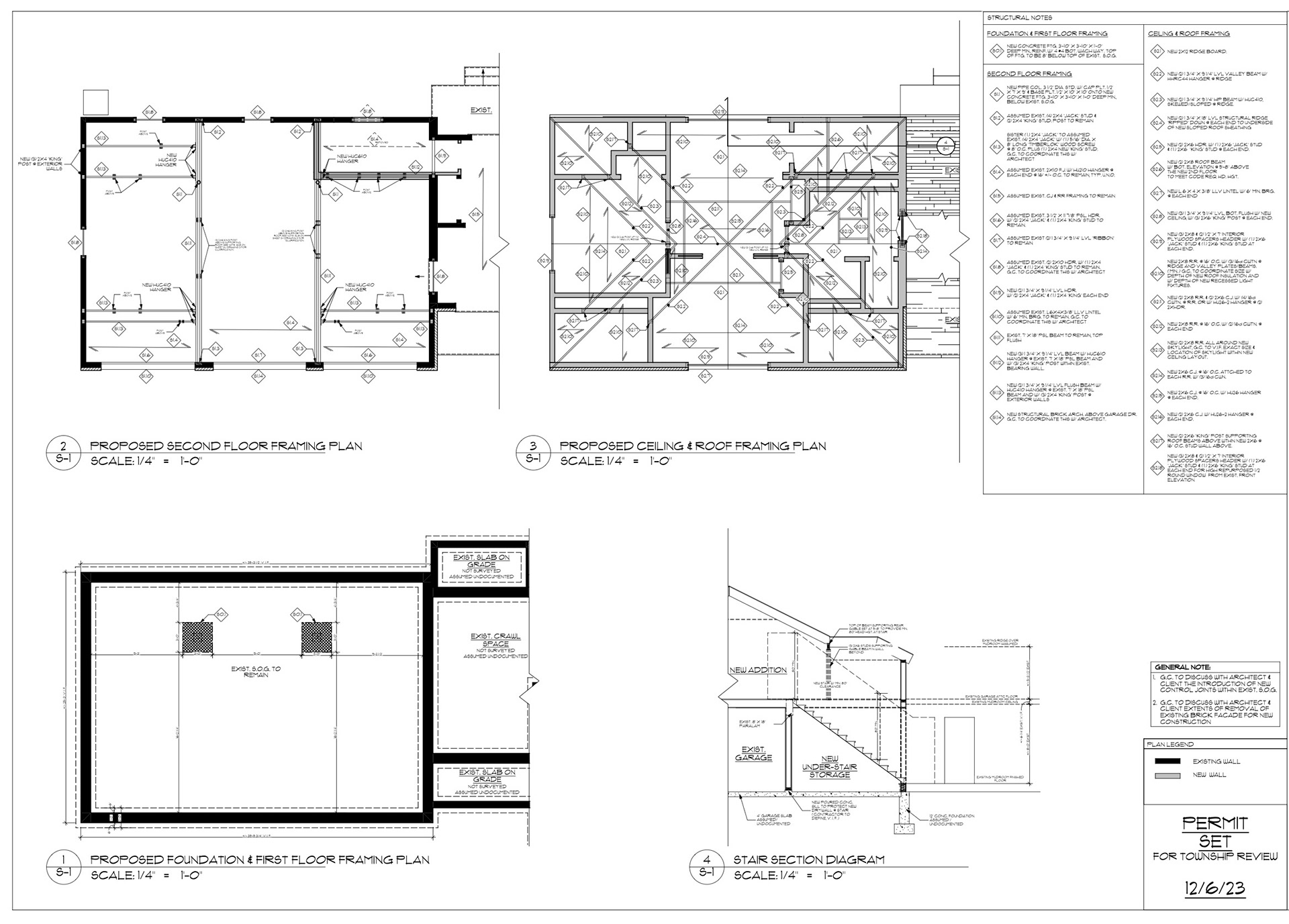
This project required a bespoke roof structure to be designed in order to remain below building height restrictions but also allow as much usable indoor space as possible.
builder: BUONO CONSTRUCTION group
Interior Designer: Design manifest

You may also like

Back to Top